Informationen zum Angebot
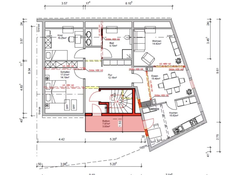
Die 98 m² große Dachgeschosswohnung befindet sich in Fulda in zentraler Innenstadtlage (Florengasse / Duume). Perfekt für eine WG zu zweit.
Die Wohnung ist ab sofort verfügbar und hat 3 Zimmer, Küche, Bad (mit Dusche) sowie einen Flur und Balkon. Die Wohnung wird mit Einbauküche vermietet.
Weitere Informationen oder Vereinbarung eines Besichtigungstermins unter +49 151 59146247
Zimmer 3 | Mitbewohner 0 | Größe (m2) 98 | Entfernung zur Hochschule 0 km
Monatliche Kosten
NK 100,- €
Garage 0,- €
1080,- €
Einmalige Kosten
Zusätzlich vorhandene Leistungen
- Spülmaschine
- Waschmaschine
Bedingungen für den Mieter
Wir suchen ruhige Hausbewohner. Katzen sind als Haustiere erlaubt. Parkplatz oder Garage ist nicht verfügbar. Auch kein Keller. Strom und Gas zusätzlich, nicht in den Nebenkosten enthalten.
Kontaktformular
in der Nähe
Supermarkt 50m. Innenstadt zu Fuß in 5 Minuten erreichbar.









